Stillvolles Einfamilienhaus in Meiningen, Winkelstraße

In bester Lage in Meinigen wird durch die Hauswerk Baumanufaktur ein modernes Wohnobjekt errichtet. Das Projekt wird auf dem Grundstück Nr. 2898/4 realisiert.

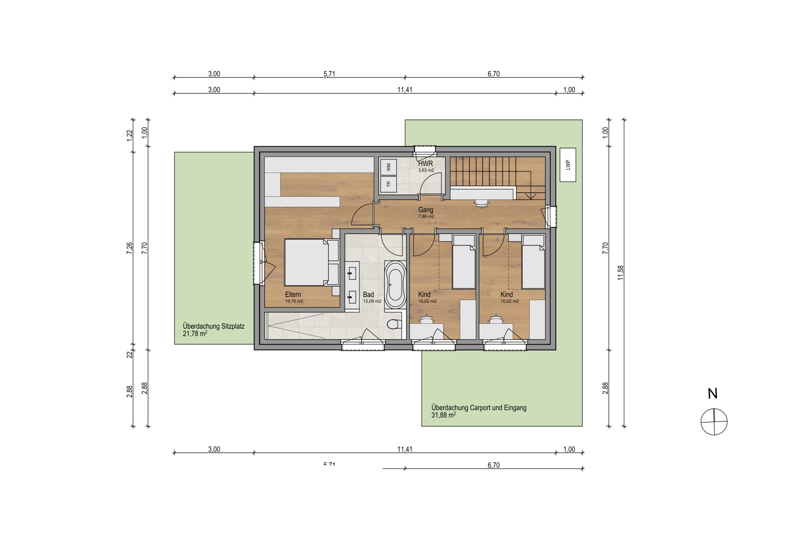
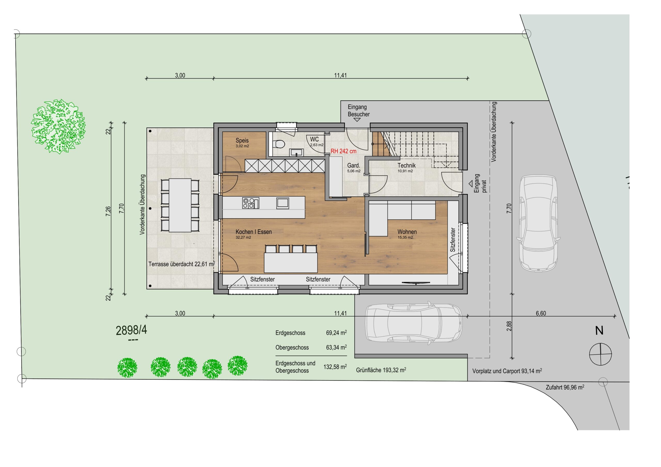
Nutzfläche: ca. 132,58m²
inkl. Carport
inkl. überdachter Terrasse
Grundstücksgröße 420m²
Gesamtkosten: € 1.030.600.-

Das Einfamilienhaus wird in Massivbauweise schlüsselfertig inkl. den Umgebungs- bzw. Vorarbeiten wie Kanalisierung, Vorplatz etc. ausgeführt.
Weiters sind im Preis auch die Anschlussgebühren und Gebührenvorschreibungen der kommunalen Versorgungsunternehmen inkludiert.

Die Hauswerk Baumanufaktur errichtet das Einfamilienhaus als Generalunternehmer entsprechend den gültigen OIB-Richtlinien und Baugesetze. Das Grundstück wird direkt vom derzeitigen Grundeigentümer erworben.